Sanremo, appartamento con giardino
Riferimento: 13901
Sanremo, Via Duca degli Abruzzi, una delle aree più tranquille e residenziali della città, comoda al mare e ai principali servizi, proponiamo in vendita un raffinato appartamento con grande giardino privato.
Situato in una palazzina signorile circondata da un'ampia area recintata, l'immobile offre privacy, sicurezza e tranquillità, garantendo un ambiente ideale per chi desidera vivere nel verde senza rinunciare alla vicinanza al centro.
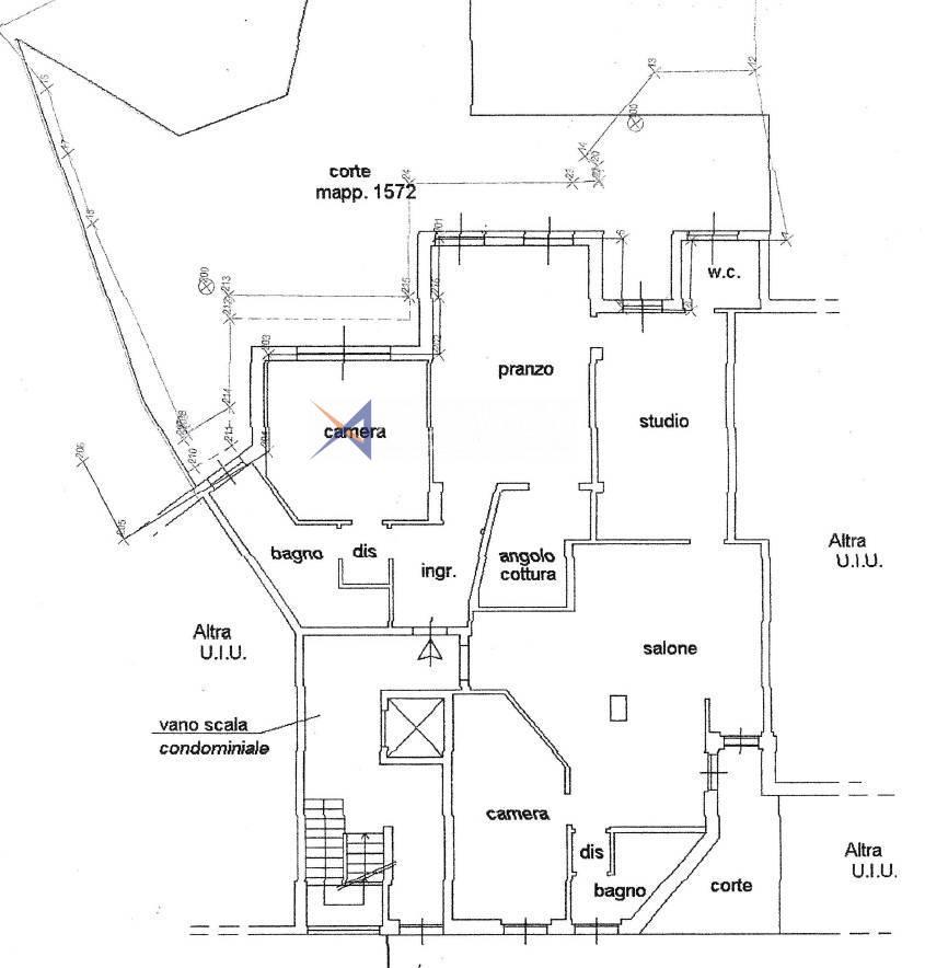
L'appartamento, di 180 mq al piano terra, vanta un giardino privato di 250 mq, curato nei minimi dettagli con gazebo, illuminazione notturna, pavimentazione in pietra e irrigazione automatica.
È composto da due unità abitative comunicanti, ciascuna con ingresso indipendente.
La prima unità, di 115 mq, comprende un luminoso soggiorno open space con sala da pranzo e cucina a vista, due camere matrimoniali ben illuminate, due bagni finestrati e accesso esclusivo al giardino.
La seconda, un bilocale di 65 mq, offre un'ampia zona giorno con cucina a vista, una camera matrimoniale, un bagno finestrato e una corte privata riservata.
L'immobile è in ottime condizioni, parzialmente arredato e dotato di impianto termoautonomo a gas metano.
Dispone inoltre di due posti auto coperti in autorimessa e due cantine.
Perfetto come residenza principale, soluzione per due famiglie o investimento.
È possibile acquistare anche solo l'appartamento più grande al prezzo di 500.000€.
Per ulteriori dettagli, non esitate a contattarci.
Sanremo, Via Duca degli Abruzzi, una delle aree più tranquille e residenziali della città, comoda al mare e ai principali servizi, proponiamo in vendita un raffinato appartamento con grande giardino privato.
Situato in una palazzina signorile circondata da un'ampia area recintata, l'immobile offre privacy, sicurezza e tranquillità, garantendo un ambiente ideale per chi desidera vivere nel verde senza rinunciare alla vicinanza al centro.
L'appartamento, di 180 mq al piano terra, vanta un giardino privato di 250 mq, curato nei minimi dettagli con gazebo, illuminazione notturna, pavimentazione in pietra e irrigazione automatica.
È composto da due unità abitative comunicanti, ciascuna con ingresso indipendente.
La prima unità, di 115 mq, comprende un luminoso soggiorno open space con sala da pranzo e cucina a vista, due camere matrimoniali ben illuminate, due bagni finestrati e accesso esclusivo al giardino.
La seconda, un bilocale di 65 mq, offre un'ampia zona giorno con cucina a vista, una camera matrimoniale, un bagno finestrato e una corte privata riservata.
L'immobile è in ottime condizioni, parzialmente arredato e dotato di impianto termoautonomo a gas metano.
Dispone inoltre di due posti auto coperti in autorimessa e due cantine.
Perfetto come residenza principale, soluzione per due famiglie o investimento.
È possibile acquistare anche solo l'appartamento più grande al prezzo di 500.000€.
Per ulteriori dettagli, non esitate a contattarci.
- Riferimento: 13901
- Prezzo: € 750.000
- Riscaldamento: autonomo
- Superficie: mq 185
- Camere: 3
- Locali: 5
- Distanza Dal mare: Metri 500
- Piano: Piano terra
- Piani totali: 3
- Spese condominiali: 160 €/mese
- Camere: 3
- MQ: 185
- Bagni: 3
€ 750.000
Aquamarina Real Estate Agency
via Vittorio Emanuele, 30218012 Bordighera (IM)
Telefono: +39 0184 26.16.87
Mobile: +39 328 83.65.167
E-mail: info@aquamarina.email TELEFONA RICHIEDI APPUNTAMENTO



