Sanremo, villa vista mare
Riferimento: 13788
Prezzo ribassato
Sanremo, in contesto tranquillo a pochi chilometri dal centro e dalle spiagge, proponiamo in vendita graziosa villetta con vista aperta fino al mare.
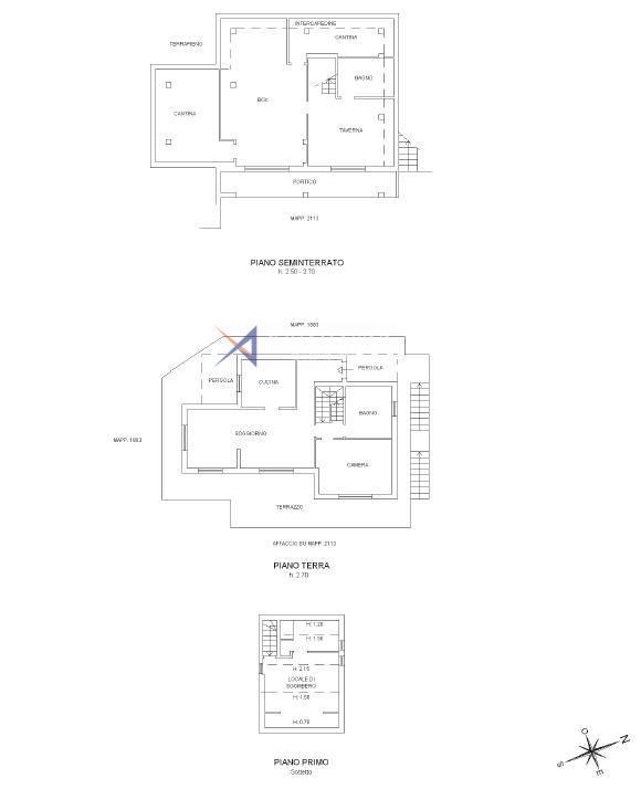
La villa, risalente ai primi anni Novanta, si propone in buone condizioni con necessità di qualche lavoro di manutenzione, si sviluppa su tre livelli per un totale di 200mq tra abitazione e magazzino ed è così suddivisa:
al piano terra: ampio magazzino convertibile in abitazione, bagno, cantina e deposito collegato all'appartamento principale tramite scala interna, portico e grande cortile;
al primo piano: ampio soggiorno con camino, cucina abitabile, grande camera da letto matrimoniale e terrazzo con vista aperta;
al piano mansardato: ampia camera da letto e bagno.
Completano la proprietà: terreno, in parte uliveto, di circa 3000mq, ampio magazzino separato dalla proprietà di 38mq e numerosi posti auto scoperti.
Sanremo, in contesto tranquillo a pochi chilometri dal centro e dalle spiagge, proponiamo in vendita graziosa villetta con vista aperta fino al mare.
La villa, risalente ai primi anni Novanta, si propone in buone condizioni con necessità di qualche lavoro di manutenzione, si sviluppa su tre livelli per un totale di 200mq tra abitazione e magazzino ed è così suddivisa:
al piano terra: ampio magazzino convertibile in abitazione, bagno, cantina e deposito collegato all'appartamento principale tramite scala interna, portico e grande cortile;
al primo piano: ampio soggiorno con camino, cucina abitabile, grande camera da letto matrimoniale e terrazzo con vista aperta;
al piano mansardato: ampia camera da letto e bagno.
Completano la proprietà: terreno, in parte uliveto, di circa 3000mq, ampio magazzino separato dalla proprietà di 38mq e numerosi posti auto scoperti.
- Riferimento: 13788
- Prezzo: € 360.000 trattabili
- Vista mare
- Riscaldamento: autonomo
- Superficie: mq 200
- Camere: 3
- Locali: 3
- Distanza Dal mare: Metri 4000
- Piano: Piano terra
- Piani totali: 3
- Camere: 3
- MQ: 200
- Bagni: 3
€ 360.000

18012 Bordighera (IM)
Telefono: +39 0184 26.16.87
Mobile: +39 328 83.65.167
E-mail: info@aquamarina.email TELEFONA RICHIEDI APPUNTAMENTO