Piani Cipressa Quadrilocale Vista Mare
Riferimento: 13894
Piani Cipressa ,Quadrilocale Vista Mare in Vendita
Ti presentiamo un esclusivo appartamento a soli 200 metri dal mare e dalla pista ciclabile più famosa della Liguria che collega Imperia a Ospedaletti, a 800 mt dal centro di San Lorenzo al Mare, situato in un contesto raffinato. Questo quadrilocale con ingresso indipendente si sviluppa su due livelli:
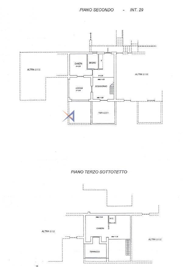
Secondo piano: Accogliente ingresso living che si apre su un luminoso soggiorno e una cucina ben attrezzata, una camera da letto, un bagno e due terrazzi. Entrambi i terrazzi offrono un'incredibile vista mare e si prestano per momenti di relax, cene, pranzi e colazioni direttamente sul mare, un terrazzo è anche dotato di una loggia per godere dell'esterno in ogni momento.
Al terzo piano: Accessibile tramite una scala interna, troviamo un'ulteriore camera da letto con terrazzo vista mare, un secondo bagno e uno studio.
Inoltre, l'appartamento dispone di due posti auto di proprietà: uno scoperto e uno coperto.
Ristrutturato con gusto nel 2018, sono presenti particolari di pregio, l'immobile è dotato di finiture di alta qualità e accessori moderni che lo rendono perfetto per essere vissuto tutto l'anno. Il riscaldamento è autonomo, con pompe di calore, e viene venduto completo di arredi su misura.
Non perdere l'opportunità di vivere in questo splendido appartamento con vista mare! Contattaci per maggiori informazioni o per organizzare una visita.
Piani Cipressa ,Quadrilocale Vista Mare in Vendita
Ti presentiamo un esclusivo appartamento a soli 200 metri dal mare e dalla pista ciclabile più famosa della Liguria che collega Imperia a Ospedaletti, a 800 mt dal centro di San Lorenzo al Mare, situato in un contesto raffinato. Questo quadrilocale con ingresso indipendente si sviluppa su due livelli:
Secondo piano: Accogliente ingresso living che si apre su un luminoso soggiorno e una cucina ben attrezzata, una camera da letto, un bagno e due terrazzi. Entrambi i terrazzi offrono un'incredibile vista mare e si prestano per momenti di relax, cene, pranzi e colazioni direttamente sul mare, un terrazzo è anche dotato di una loggia per godere dell'esterno in ogni momento.
Al terzo piano: Accessibile tramite una scala interna, troviamo un'ulteriore camera da letto con terrazzo vista mare, un secondo bagno e uno studio.
Inoltre, l'appartamento dispone di due posti auto di proprietà: uno scoperto e uno coperto.
Ristrutturato con gusto nel 2018, sono presenti particolari di pregio, l'immobile è dotato di finiture di alta qualità e accessori moderni che lo rendono perfetto per essere vissuto tutto l'anno. Il riscaldamento è autonomo, con pompe di calore, e viene venduto completo di arredi su misura.
Non perdere l'opportunità di vivere in questo splendido appartamento con vista mare! Contattaci per maggiori informazioni o per organizzare una visita.
- Riferimento: 13894
- Prezzo: € 320.000
- Vista mare
- Riscaldamento: autonomo
- Superficie: mq 79
- Camere: 2
- Locali: 4
- Distanza Dal mare: Metri 200
- Piano: Su due livelli
- Piani totali: 3
- Esposizione: Nord Est/Sud Est
- Località: Piani
- Spese condominiali: 98 €/mese
- Camere: 2
- MQ: 79
- Bagni: 2
VENDUTO
Aquamarina Real Estate Agency
via Vittorio Emanuele, 30218012 Bordighera (IM)
Telefono: +39 0184 26.16.87
Mobile: +39 328 83.65.167
E-mail: info@aquamarina.email TELEFONA RICHIEDI APPUNTAMENTO



