Imperia, appartamento in centro
Riferimento: 14105
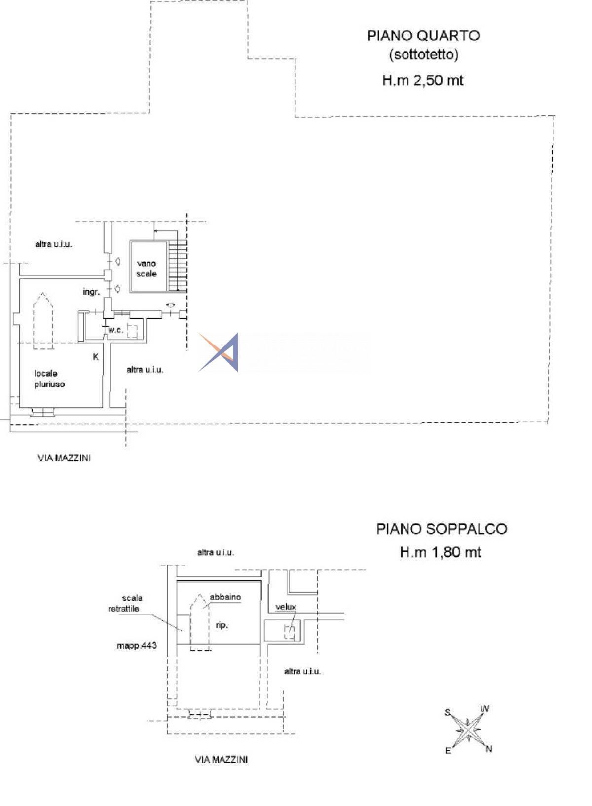
Imperia, appartamento in centro. Nel caratteristico Borgo di Porto Maurizio, in posizione centrale e particolarmente comoda per raggiungere a piedi sia le spiagge che i negozi del centro storico, proponiamo in vendita appartamento situato al quarto piano con ascensore di un piccolo condominio con basse spese condominiali. L'immobile si trova in prossimità della rinomata pista ciclabile che costeggia il mare e collega in modo pratico diversi quartieri, oltre a essere ben collegato ai principali servizi cittadini come supermercati, scuole e trasporti pubblici. L'appartamento è mansardato, ma con altezze elevate, è composto da ingresso con ampia zona living, cucina a vista, bagno, un soppalco che ospita la zona notte e una cantina, ideale per chi cerca praticità senza rinunciare alla comodità degli spazi. Il riscaldamento è autonomo con caldaia per riscaldamento e acqua calda sanitaria, caratteristica che garantisce comfort e un ottimo controllo sui consumi. Grazie alla sua posizione, alle basse spese di gestione e agli spazi ben distribuiti, questa soluzione si presta sia come residenza principale che come casa vacanza, e come investimento da mettere a reddito, per chi desidera vivere a pochi passi dal mare senza rinunciare alla comodità dei servizi.
Imperia, appartamento in centro. Nel caratteristico Borgo di Porto Maurizio, in posizione centrale e particolarmente comoda per raggiungere a piedi sia le spiagge che i negozi del centro storico, proponiamo in vendita appartamento situato al quarto piano con ascensore di un piccolo condominio con basse spese condominiali. L'immobile si trova in prossimità della rinomata pista ciclabile che costeggia il mare e collega in modo pratico diversi quartieri, oltre a essere ben collegato ai principali servizi cittadini come supermercati, scuole e trasporti pubblici. L'appartamento è mansardato, ma con altezze elevate, è composto da ingresso con ampia zona living, cucina a vista, bagno, un soppalco che ospita la zona notte e una cantina, ideale per chi cerca praticità senza rinunciare alla comodità degli spazi. Il riscaldamento è autonomo con caldaia per riscaldamento e acqua calda sanitaria, caratteristica che garantisce comfort e un ottimo controllo sui consumi. Grazie alla sua posizione, alle basse spese di gestione e agli spazi ben distribuiti, questa soluzione si presta sia come residenza principale che come casa vacanza, e come investimento da mettere a reddito, per chi desidera vivere a pochi passi dal mare senza rinunciare alla comodità dei servizi.
- Camere: 1
- MQ: 60
- Bagni: 1
€ 87.000
Aquamarina Real Estate Agency
via Vittorio Emanuele, 30218012 Bordighera (IM)
Telefono: +39 0184 26.16.87
Mobile: +39 328 83.65.167
E-mail: info@aquamarina.email TELEFONA RICHIEDI APPUNTAMENTO

