Sanremo, attico vista mare
Riferimento: 13800
Sanremo, a pochi minuti dal centro e dalle spiagge, proponiamo in vendita ampio attico con magnifica terrazza vista mare.
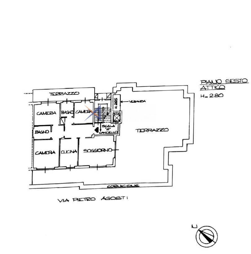
L'immobile, che si propone in stato di origine, è così composto: ingresso, disimpegno, cucina abitabile, soggiorno, tre camere da letto e due bagni.
Completano la proprietà una grande terrazza di circa 120mq dalla quale è possibile godere di una magnifica vista aperta sulla città e sul mare, due terrazzini più piccoli, cantina e ampio box auto di pertinenza.
Riscaldamento centralizzato a valvole, convertibile in autonomo.
Sanremo, a pochi minuti dal centro e dalle spiagge, proponiamo in vendita ampio attico con magnifica terrazza vista mare.
L'immobile, che si propone in stato di origine, è così composto: ingresso, disimpegno, cucina abitabile, soggiorno, tre camere da letto e due bagni.
Completano la proprietà una grande terrazza di circa 120mq dalla quale è possibile godere di una magnifica vista aperta sulla città e sul mare, due terrazzini più piccoli, cantina e ampio box auto di pertinenza.
Riscaldamento centralizzato a valvole, convertibile in autonomo.
- Riferimento: 13800
- Prezzo: € 400.000
- Vista mare
- Riscaldamento: centralizzato
- Superficie: mq 105
- Camere: 3
- Locali: 4
- Distanza Dal mare: Metri 1000
- Piano: Attico
- Piani totali: 5
- Spese condominiali: 210 €/mese
- Camere: 3
- MQ: 105
- Bagni: 2
€ 400.000
Aquamarina Real Estate Agency
via Vittorio Emanuele, 30218012 Bordighera (IM)
Telefono: +39 0184 26.16.87
Mobile: +39 328 83.65.167
E-mail: info@aquamarina.email TELEFONA RICHIEDI APPUNTAMENTO



