Cipressa, villa vista mare
Riferimento: 13784
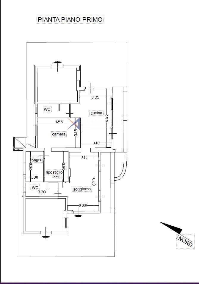
Cipressa, a pochi minuti dalle spiagge, proponiamo in vendita magnifica villa vista mare.
La proprietà, di recente costruzione, si sviluppa su due livelli ed è così suddivisa:
ingresso in luminosa sala da pranzo, spaziosa cucina abitabile, camera master con guardaroba e bagno privato, seconda camera da letto, altri due bagni e terzo locale adibito a sala cinema, ma convertibile in terza camera da letto grazie alla generosa metratura.
Il piano seminterrato, che si presenta allo stato grezzo, si sviluppa in altri 130mq.
Circonda la proprietà un magnifico terreno vista mare di circa 1200mq sul quale è in fase di realizzazione una piscina, ideale per godere di momenti di relax all'aria aperta e due comodi posti auto scoperti.
Cipressa, a pochi minuti dalle spiagge, proponiamo in vendita magnifica villa vista mare.
La proprietà, di recente costruzione, si sviluppa su due livelli ed è così suddivisa:
ingresso in luminosa sala da pranzo, spaziosa cucina abitabile, camera master con guardaroba e bagno privato, seconda camera da letto, altri due bagni e terzo locale adibito a sala cinema, ma convertibile in terza camera da letto grazie alla generosa metratura.
Il piano seminterrato, che si presenta allo stato grezzo, si sviluppa in altri 130mq.
Circonda la proprietà un magnifico terreno vista mare di circa 1200mq sul quale è in fase di realizzazione una piscina, ideale per godere di momenti di relax all'aria aperta e due comodi posti auto scoperti.
- Riferimento: 13784
- Prezzo: € 1.200.000 trattabili
- Vista mare
- Riscaldamento: autonomo
- Superficie: mq 260
- Camere: 3
- Locali: 6
- Distanza Dal mare: Metri 500
- Località: Piani
- Camere: 3
- MQ: 260
- Bagni: 3
€ 1.200.000
Aquamarina Real Estate Agency
via Vittorio Emanuele, 30218012 Bordighera (IM)
Telefono: +39 0184 26.16.87
Mobile: +39 328 83.65.167
E-mail: info@aquamarina.email TELEFONA RICHIEDI APPUNTAMENTO
