A Sanremo, appartamento vista mare
Riferimento: 13906
Prezzo ribassato
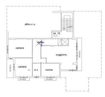
A Sanremo, a breve distanza dal centro, proponiamo in vendita un ampio appartamento situato al quinto e ultimo piano di un edificio, servito da ascensore, con una vista mare spettacolare. L'appartamento si compone di un ampio ingresso che conduce alla zona giorno living, una cucina semi abitabile, due camere matrimoniali e un bagno.
L'immobile è caratterizzato da quattro balconi che offrono una splendida vista e una tripla esposizione, che garantisce luminosità durante tutto l'arco della giornata.
L'alloggio si trova in buono stato originale, con ampi spazi e metrature generose.
Il riscaldamento è autonomo, offrendo un comfort ottimale.
A Sanremo, a breve distanza dal centro, proponiamo in vendita un ampio appartamento situato al quinto e ultimo piano di un edificio, servito da ascensore, con una vista mare spettacolare. L'appartamento si compone di un ampio ingresso che conduce alla zona giorno living, una cucina semi abitabile, due camere matrimoniali e un bagno.
L'immobile è caratterizzato da quattro balconi che offrono una splendida vista e una tripla esposizione, che garantisce luminosità durante tutto l'arco della giornata.
L'alloggio si trova in buono stato originale, con ampi spazi e metrature generose.
Il riscaldamento è autonomo, offrendo un comfort ottimale.
- Riferimento: 13906
- Prezzo: € 259.000
- Vista mare
- Riscaldamento: autonomo
- Superficie: mq 119
- Camere: 2
- Locali: 4
- Distanza Dal mare: Metri 600
- Piano: 5
- Piani totali: 5
- Spese condominiali: 100 €/mese
- Camere: 2
- MQ: 119
- Bagni: 1
€ 259.000

18012 Bordighera (IM)
Telefono: +39 0184 26.16.87
Mobile: +39 328 83.65.167
E-mail: info@aquamarina.email TELEFONA RICHIEDI APPUNTAMENTO